En SENREL S.R.L. somos una empresa de ingeniería y construcción con base en Cochabamba que brindamos soluciones integrales en toda Bolivia, especializándonos en proyectos eléctricos, automatización industrial, sistemas de protección, eficiencia energética y consultoría técnica para los sectores industrial, comercial, institucional y residencial. Nuestro equipo de profesionales cuenta con amplia experiencia en diseño, ejecución y mantenimiento de proyectos de diversa complejidad, trabajando siempre bajo el cumplimiento de las normativas nacionales e internacionales vigentes y utilizando tecnología de última generación combinada con metodologías probadas que nos permiten garantizar resultados confiables, seguros y eficientes en cada trabajo que realizamos.
Entendemos que cada proyecto es único y requiere un enfoque personalizado para alcanzar los objetivos del cliente, por eso ofrecemos un servicio integral que abarca desde la evaluación inicial y el diseño hasta la implementación y el mantenimiento posterior, destacándonos por nuestra capacidad de respuesta rápida y disponibilidad permanente para emergencias, lo cual, sumado a nuestro compromiso con la calidad y el servicio, nos ha convertido en el socio estratégico de confianza para empresas e instituciones que buscan optimizar sus sistemas y garantizar la continuidad de sus operaciones.










El mantenimiento eléctrico y electromecánico es fundamental para garantizar el funcionamiento seguro y continuo de toda instalación eléctrica, desde plantas industriales y centros comerciales hasta hospitales, edificios corporativos y residencias, ya que los sistemas eléctricos están sometidos a desgaste natural, variaciones de carga, condiciones ambientales y envejecimiento de materiales que sin la atención adecuada derivan en fallas costosas, paradas inesperadas o situaciones de riesgo para personas y equipos. La falta de mantenimiento adecuado no solo genera pérdidas económicas por paradas de producción o reparaciones de emergencia, sino que también puede provocar accidentes graves, incendios o daños irreparables en equipos sensibles, por lo que implementar un programa de mantenimiento profesional es una inversión que se recupera rápidamente a través del ahorro en reparaciones mayores y la prevención de pérdidas operativas.
Nuestro mantenimiento integral incluye:
- Limpieza técnica especializada con productos dieléctricos
- Reapriete de conexiones con torquímetro calibrado
- Verificación y prueba de interruptores y protecciones
- Medición de resistencia de aislamiento (megado)
- Análisis termográfico infrarrojo
- Pruebas de continuidad en circuitos de tierra
- Verificación de secuencia de fases
- Medición de corrientes de fuga
- Análisis de calidad de energía (armónicos, factor de potencia, desbalances)
- Mantenimiento de motores eléctricos (rebobinado, balanceo, alineación)
- Servicio a transformadores (pruebas de aceite, relación de transformación)
- Mantenimiento de tableros de control y CCM
- Revisión de sistemas de arranque suave y variadores de frecuencia
Nuestro servicio se adapta a las necesidades específicas de cada cliente mediante programas preventivos con frecuencias definidas según la criticidad de la operación, mantenimiento predictivo basado en termografía infrarroja y análisis de tendencias que permite anticipar fallas antes de que ocurran, y mantenimiento correctivo con respuesta inmediata para resolver fallas imprevistas minimizando el tiempo de parada, todo ejecutado por técnicos certificados que no solo reparan sino que identifican las causas raíz de los problemas y proponen mejoras para evitar recurrencias, documentando cada intervención con reportes detallados que incluyen fotografías, termografías, mediciones y recomendaciones técnicas claras, logrando así que nuestros clientes reduzcan sus costos operativos hasta en un treinta por ciento, extiendan la vida útil de sus equipos y mantengan la continuidad de sus operaciones con máxima seguridad y confiabilidad.










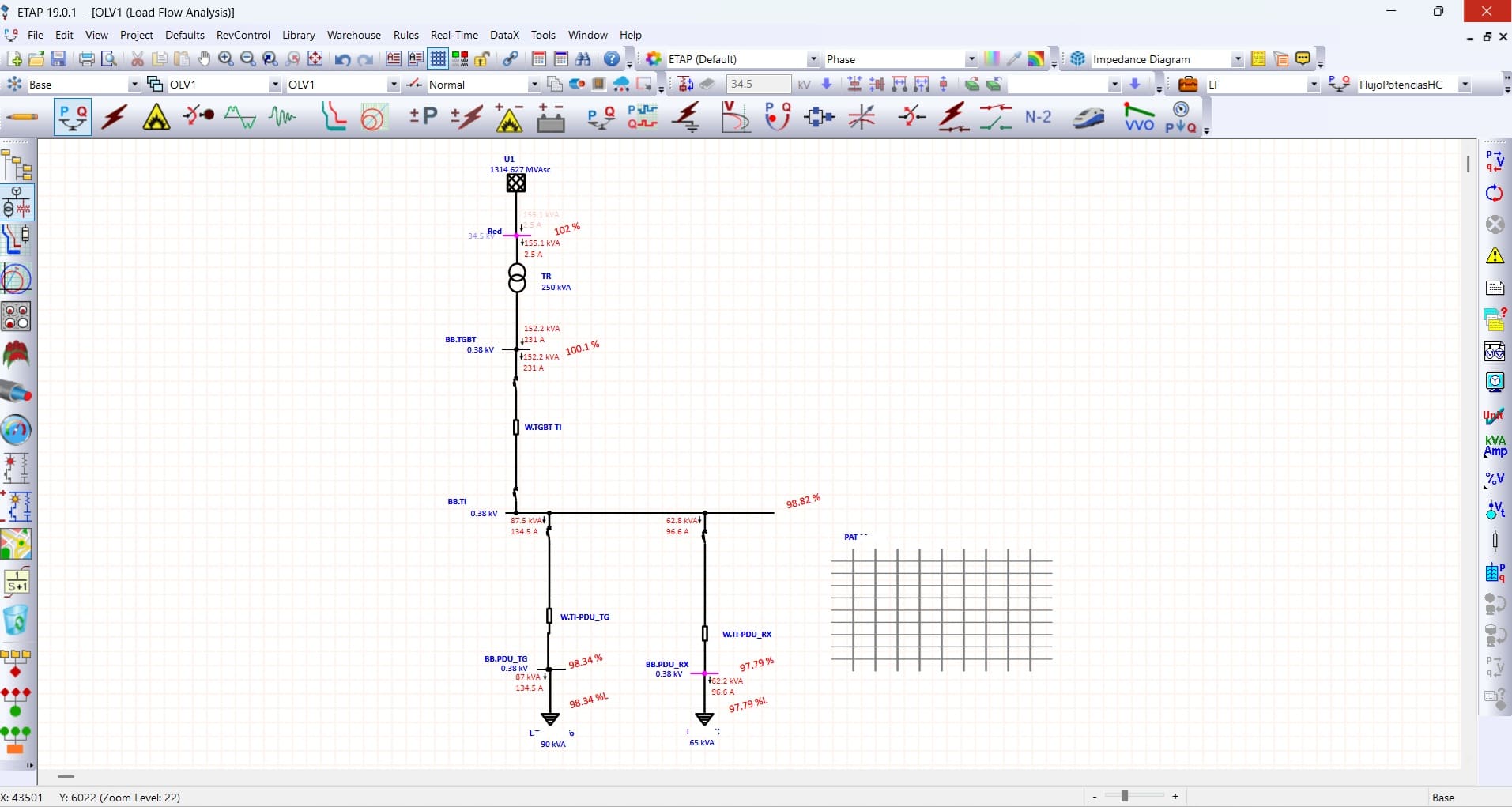
El diseño y la ingeniería son la base fundamental de todo proyecto exitoso, ya que es en esta etapa donde se definen las soluciones técnicas, se optimizan los recursos y se prevén los desafíos que surgirán durante la construcción y operación, evitando costosas modificaciones posteriores y garantizando que los sistemas cumplan exactamente con los requerimientos operativos, normativos y presupuestarios del cliente. Desarrollamos ingeniería completa desde la conceptualización inicial hasta los planos constructivos finales, trabajando con herramientas de diseño asistido por computadora y software de simulación que nos permiten modelar el comportamiento de los sistemas antes de su implementación, optimizando dimensionamientos, verificando selectividad de protecciones, calculando caídas de tensión, corrientes de cortocircuito y coordinación de equipos para entregar diseños técnicamente correctos, económicamente viables y operativamente eficientes.
Nuestros servicios de ingeniería incluyen:
- Estudios de carga y demanda máxima
- Cálculos de cortocircuito y coordinación de protecciones
- Diseño de sistemas de distribución en media y baja tensión
- Dimensionamiento de transformadores y grupos electrógenos
- Diseño de sistemas de puesta a tierra y apantallamiento
- Iluminación interior y exterior (cálculos fotométricos)
- Diseño de sistemas de emergencia y respaldo (UPS, generadores)
- Ingeniería de tableros de distribución y control
- Diseño de bancos de capacitores y corrección de factor de potencia
- Sistemas de automatización y control industrial
- Planos eléctricos unifilares, trifilares y de montaje
- Memorias de cálculo y especificaciones técnicas
- Presupuestos detallados y cronogramas de ejecución
- Estudios de Diseño Técnico de Preinversión (EDTP)
Cada proyecto que desarrollamos cumple estrictamente con las normativas bolivianas NB, los estándares internacionales IEC, NFPA y NEC según corresponda, además de las regulaciones específicas de cada sector como las exigidas por la Autoridad de Electricidad y Tecnología Nuclear (AETN), las distribuidoras eléctricas locales y las normativas particulares de industrias especializadas como minería, hidrocarburos o salud, entregando documentación completa que incluye planos as-built, manuales de operación y mantenimiento, protocolos de pruebas y toda la información necesaria para la correcta operación, mantenimiento y futuras ampliaciones del sistema, garantizando así que nuestros diseños no solo resuelven las necesidades inmediatas sino que también contemplan el crecimiento futuro y la flexibilidad operativa que toda instalación moderna requiere.










La industria moderna demanda sistemas eléctricos y de automatización que garanticen operación continua, eficiencia energética y flexibilidad para adaptarse a cambios en los procesos productivos, por lo que desarrollamos soluciones integrales que abarcan desde el suministro de energía en media tensión hasta el control preciso de variables de proceso, implementando tecnologías que permiten monitorear, controlar y optimizar cada aspecto de la operación industrial, ya sea en plantas de manufactura, procesamiento de alimentos, minería, textiles o cualquier sector que requiera confiabilidad absoluta en sus sistemas eléctricos y de control. Nuestra experiencia en ambientes industriales exigentes nos permite diseñar sistemas robustos que soportan condiciones adversas de temperatura, humedad, polvo y vibración, mientras mantienen la precisión y confiabilidad que los procesos modernos demandan, integrando perfectamente la infraestructura eléctrica con los sistemas de automatización para crear soluciones que realmente mejoran la productividad y competitividad de nuestros clientes.
Nuestras soluciones industriales incluyen:
- Centros de control de motores (CCM) y tableros de distribución industrial
- Sistemas de arranque suave y variadores de frecuencia
- Automatización con PLC de diversas marcas (Siemens, Allen Bradley, ABB)
- Sistemas SCADA y HMI para supervisión y control
- Redes industriales (Profibus, Modbus, Ethernet Industrial)
- Instrumentación y control de procesos
- Sistemas de pesaje y dosificación automática
- Control de bombas y sistemas de presión constante
- Automatización de líneas de producción y envasado
- Sistemas de transporte y manejo de materiales
- Integración con sistemas MES y ERP
- Soluciones de eficiencia energética y gestión de demanda
- Sistemas de respaldo y transferencia automática
Cada proyecto industrial que ejecutamos comienza con un análisis detallado del proceso productivo para entender las necesidades específicas de operación, los puntos críticos que requieren redundancia, las variables que deben monitorearse y los objetivos de mejora que el cliente busca alcanzar, permitiéndonos diseñar soluciones que no solo automatizan procesos sino que también generan información valiosa para la toma de decisiones, reducen tiempos muertos por cambios de producto, minimizan el consumo energético mediante control inteligente de motores y cargas, mejoran la calidad del producto final mediante control preciso de variables críticas, y aumentan la seguridad operativa mediante enclavamientos y sistemas de parada de emergencia correctamente diseñados, todo implementado con equipos de marcas reconocidas, programación estructurada y documentación completa que facilita el mantenimiento, las modificaciones futuras y la capacitación del personal operativo.










Los sistemas de protección contra descargas atmosféricas y las redes de puesta a tierra son elementos críticos de seguridad que protegen vidas humanas, estructuras físicas y equipos electrónicos sensibles contra los efectos devastadores de los rayos y las fallas eléctricas, siendo especialmente importantes en Bolivia donde la actividad atmosférica es intensa en ciertas regiones y épocas del año, y donde muchas instalaciones industriales y de telecomunicaciones se ubican en zonas elevadas o aisladas que aumentan su exposición al riesgo. Un sistema de protección correctamente diseñado e instalado no solo cumple con las normativas obligatorias sino que proporciona tranquilidad operativa al garantizar que una descarga atmosférica o una falla eléctrica no causará daños catastróficos en equipos críticos, pérdida de datos importantes o, lo más grave, lesiones al personal, convirtiéndose en una inversión fundamental que protege tanto los activos físicos como la continuidad operativa de cualquier instalación.
Nuestros servicios de protección incluyen:
- Evaluación de riesgo por rayos según norma vigente
- Diseño de sistemas de protección externa (pararrayos, mallas captadoras)
- Diseño de sistemas de protección interna (DPS, equipotencialización)
- Cálculo y diseño de mallas de puesta a tierra
- Instalación de pararrayos tipo Franklin, PDC y jaulas de Faraday
- Sistemas de puesta a tierra para subestaciones y plantas industriales
- Puesta a tierra de equipos electrónicos sensibles (menos de 5 ohmios)
- Puesta a tierra de torres de comunicación y antenas
- Medición de resistividad del terreno y resistencia de puesta a tierra
- Tratamiento químico del suelo para reducir resistencia
- Sistemas equipotenciales y barras de tierra aisladas
- Mantenimiento y certificación anual de sistemas existentes
- Protección de tanques de combustible y áreas clasificadas
Implementamos soluciones que cumplen estrictamente con las normas bolivianas para protección contra rayos y para sistemas de puesta a tierra, utilizando materiales certificados como conductores de cobre, barras copperweld, soldadura exotérmica y conectores bimetálicos que garantizan durabilidad y efectividad a largo plazo, realizando mediciones con telurímetros calibrados para verificar que las resistencias obtenidas cumplen con los valores requeridos según el tipo de instalación, documentando cada sistema con planos de ubicación, memorias de cálculo, protocolos de medición y certificados de conformidad que respaldan la efectividad de la protección instalada, y proporcionando programas de mantenimiento que incluyen mediciones periódicas, inspección de conexiones, verificación de continuidad y renovación de elementos deteriorados para asegurar que el sistema mantenga su efectividad protectora durante toda su vida útil.










Las auditorías eléctricas y los estudios de eficiencia energética son herramientas fundamentales para identificar oportunidades de ahorro, detectar riesgos ocultos y optimizar el desempeño de las instalaciones eléctricas, permitiendo a las empresas tomar decisiones informadas sobre inversiones en mejoras que no solo reducen costos operativos sino que también aumentan la confiabilidad y seguridad de sus sistemas. En un contexto donde los costos energéticos representan un porcentaje significativo de los gastos operativos y donde las penalizaciones por bajo factor de potencia o consumo en horas pico pueden impactar severamente la rentabilidad, realizar auditorías periódicas se convierte en una práctica esencial para mantener la competitividad, especialmente considerando que muchas instalaciones operan con equipos antiguos o sobredimensionados que consumen más energía de la necesaria y que pequeñas mejoras pueden generar ahorros sustanciales que se mantienen mes tras mes.
Nuestros servicios de auditoría incluyen:
- Análisis completo de facturación eléctrica y estructura tarifaria
- Medición y registro de perfiles de carga durante 7 a 30 días
- Análisis de calidad de energía (armónicos, flicker, sags, swells)
- Medición de factor de potencia y cálculo de penalizaciones
- Termografía infrarroja de tableros y equipos críticos
- Evaluación de eficiencia en motores y sistemas de bombeo
- Auditoría de sistemas de iluminación y cálculo de eficiencia lumínica
- Análisis de pérdidas en transformadores y conductores
- Estudio de balance de cargas y optimización de fases
- Evaluación de sistemas de tierra y continuidad
- Identificación de consumos fantasma y fugas de energía
- Propuestas de mejora con análisis costo-beneficio
- Gestión de demanda y optimización de horarios de operación
Cada auditoría que realizamos utiliza instrumentación profesional calibrada incluyendo analizadores de redes clase A, cámaras termográficas de alta resolución, luxómetros digitales y medidores de armónicos que capturan datos precisos sobre el comportamiento real del sistema eléctrico, procesando esta información para generar reportes comprensibles que no solo identifican los problemas sino que también cuantifican su impacto económico y proponen soluciones priorizadas según su retorno de inversión, incluyendo mejoras simples como ajuste de tensiones o rebalanceo de cargas que pueden implementarse inmediatamente, hasta proyectos de mayor envergadura como instalación de bancos de capacitores automáticos, modernización de sistemas de iluminación a tecnología LED, reemplazo de motores estándar por motores de alta eficiencia, o implementación de variadores de frecuencia, siempre con cálculos detallados que demuestran períodos de recuperación típicamente entre seis y dieciocho meses, permitiendo que nuestros clientes transformen sus sistemas eléctricos de centros de costo en activos optimizados que contribuyen directamente a la rentabilidad del negocio.










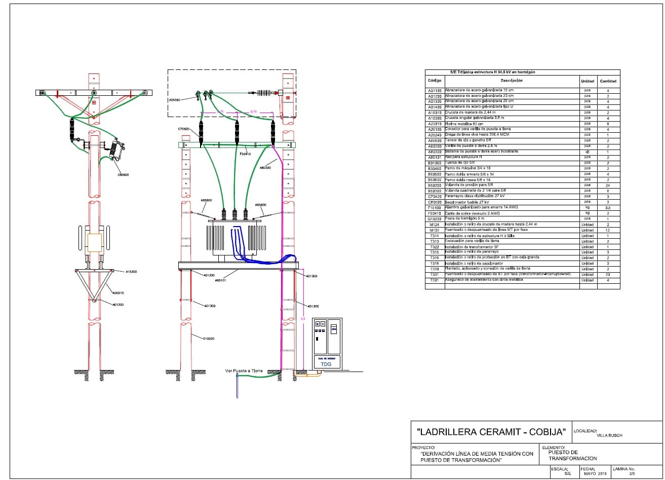
Las redes de distribución eléctrica constituyen la columna vertebral del suministro energético para urbanizaciones, parques industriales, complejos comerciales y comunidades enteras, requiriendo un diseño cuidadoso que garantice capacidad suficiente para la demanda actual y futura, confiabilidad para mantener el servicio continuo, y seguridad tanto para el personal de mantenimiento como para la población en general. Desarrollamos proyectos completos de redes de distribución que incluyen desde el punto de entrega en media tensión hasta la acometida final a cada usuario, considerando aspectos técnicos como caídas de tensión permisibles, coordinación de protecciones, selectividad ante fallas y capacidad de expansión, así como aspectos prácticos como rutas de tendido, facilidad de mantenimiento, estética urbana y cumplimiento con las normativas de las empresas distribuidoras locales, garantizando que cada red que construimos no solo funciona correctamente desde el primer día sino que también puede crecer y adaptarse a las necesidades cambiantes de la zona servida.
Nuestros servicios de redes incluyen:
- Estudios de Diseño Técnico de Preinversión (EDTP) para electrificación rural
- Proyectos bajo el Manual de Elaboración y Evaluación de Proyectos de Electrificación Rural (MEEPER)
- Estudios de factibilidad para extensión de redes rurales
- Diseño de redes de media tensión (6.9kV, 24.9kV, 34.5kV)
- Redes de baja tensión (220V, 380V, 440V)
- Montaje de postes de madera, hormigón y metálicos
- Tendido de conductores aéreos y subterráneos
- Instalación de transformadores de distribución
- Sistemas de protección y seccionamiento
- Redes subterráneas con ductos y cámaras de inspección
- Sistemas de medición directa e indirecta trifásica
- Obras civiles asociadas (excavaciones, bases, canalizaciones, etc)
- Poda técnica y despeje de servidumbres
- Normalización de redes existentes
- Gestión de permisos y coordinación con las distribuidoras
Ejecutamos cada proyecto de red cumpliendo estrictamente los estándares técnicos de todas las empresas distribuidoras bolivianas: ELFEC en Cochabamba, CRE en Santa Cruz, DELAPAZ en La Paz, SEPSA en Potosí, CESSA en Chuquisaca, SETAR en Tarija, ENDE en el sistema eléctrico nacional, además de cooperativas eléctricas rurales y sistemas aislados, utilizando materiales homologados y certificados que garantizan durabilidad y compatibilidad con las redes existentes, implementando procedimientos de seguridad rigurosos para trabajos en altura y proximidad a líneas energizadas, coordinando con las distribuidoras para minimizar interrupciones del servicio durante conexiones y transferencias, realizando pruebas completas que incluyen medición de aislamiento, verificación de fases, pruebas de continuidad y termografía antes de la energización, y entregando documentación as-built que incluye planos actualizados, memorias técnicas, protocolos de pruebas y toda la información necesaria para la operación y mantenimiento futuro de la red, asegurando así que nuestros clientes reciben infraestructura eléctrica que no solo resuelve sus necesidades inmediatas de distribución sino que también representa una inversión sólida y duradera en el desarrollo de su comunidad o proyecto.










La consultoría técnica especializada y la capacitación del personal son servicios fundamentales que complementan nuestras soluciones de ingeniería, proporcionando a las organizaciones el conocimiento experto necesario para tomar decisiones informadas sobre sus inversiones en infraestructura eléctrica y asegurando que su personal tenga las competencias requeridas para operar y mantener los sistemas de manera segura y eficiente. Nuestra consultoría abarca desde evaluaciones técnicas independientes hasta supervisión especializada de proyectos en ejecución, peritajes técnicos para resolver disputas, auditorías de cumplimiento normativo, y asesoramiento estratégico para optimización de recursos y planificación de expansiones, brindando a nuestros clientes una perspectiva objetiva y profesional basada en años de experiencia práctica en el campo de la ingeniería eléctrica boliviana.
Nuestros servicios de consultoría y capacitación incluyen:
- Supervisión y fiscalización de obras eléctricas
- Peritajes técnicos especializados
- Evaluación de propuestas técnicas y licitaciones
- Estudios de factibilidad técnico-económica
- Planes maestros de desarrollo eléctrico
- Gestión y evaluación de contratos de suministro energético
- Capacitación en seguridad eléctrica y LOTO
- Cursos de interpretación de planos eléctricos
- Formación en mantenimiento eléctrico industrial
- Capacitación en normativas
Desarrollamos programas de capacitación adaptados a las necesidades específicas de cada cliente, combinando fundamentos teóricos con ejercicios prácticos que aseguran que los participantes no solo comprenden los conceptos sino que también pueden aplicarlos en su trabajo diario, utilizando metodologías de enseñanza probadas que incluyen casos reales, simulaciones, prácticas en equipos reales y evaluaciones que verifican el aprendizaje, entregando material didáctico completo y certificados de participación que respaldan las competencias adquiridas, mientras que en consultoría proporcionamos informes detallados con análisis objetivos, conclusiones claras y recomendaciones prácticas que pueden implementarse inmediatamente, ayudando a nuestros clientes a evitar errores costosos, optimizar sus inversiones, cumplir con regulaciones cada vez más estrictas y mantener sus instalaciones operando en los más altos estándares de seguridad y eficiencia, convirtiéndonos así en el socio estratégico que las empresas necesitan no solo para resolver problemas técnicos sino también para desarrollar las capacidades internas que les permitirán enfrentar los desafíos futuros con confianza y autonomía.
¿Tenés un proyecto o consulta técnica?
En SENREL S.R.L. respondemos rápidamente.
Completá el formulario o comunicate directamente por teléfono o WhatsApp y te contactamos a la brevedad.
Teléfono: +591 65568778
Email: senrelsrl@gmail.com